/
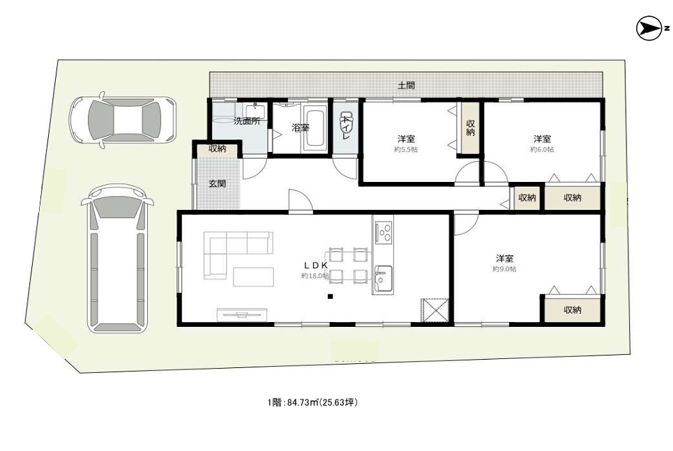
【間取り】
- 建物面積
- 84.73㎡
- 築年月
- 1974年10月(築51年)
- 販売戸数
- -
- 総戸数
- -
- 間取り / 詳細
- 3LDK
- 向き
- -
- 建物面積(坪数)
- 84.73㎡(25.63坪)
- 土地面積(坪数)
- 165.00㎡(49.91坪)
- 建ぺい率 /
容積率 - 60%/200%
- 築年月
- 1974年10月(築51年)
- 土地権利
- 所有権
- 土地
(敷金 / 保証金) - - / -
- 建物構造
- 木造 / 1階建
- 傾斜地部分面積
- -
- 路地状敷地
- -
- 私道負担面積
- -
- セットバック
- 記載なし
- 高圧線下面積
- -
- 施工会社
- -
- 用途地域
- 第二種中高層住居専用
- 地目 / 地勢
- - / -
- 接道状況
- -
- 国土法届出要否
- 不要
- 都市計画
- 市街化区域
- 総区画数 /
販売区画数 - -/-
- 現況
- 空家
- その他
法令上の制限 - -
- 取引態様
- 仲介
- 引渡し
- 相談
- 取引条件の
有効期限 - 2025年11月21日
- 設備条件
-
- バリアフリー / 都市ガス / 駐車2台可 / システムキッチン / 温水洗浄便座
- 設備(その他)
-
-
-
- 物件番号
- 97799172
- 管理コード
- -
- 建築確認番号
- -
- 情報更新日
- 2025年11月07日
- 次回更新予定日
- 2025年11月21日
- 備考
- 耐震補強予定
- 月々の支払額
- 9.6円
- 購入希望物件価格
-
万円
- 頭金
-
万円
- 金利
-
%
- 返済額(ボーナス1回分)
-
万円
- 返済期間
-
年
セールスポイント
只今リフォーム中!
リフォーム期間中もご内覧可能です。
ゆめシティまで徒歩7分と大変便利な場所です♪
基本情報
設備条件
その他
支払いシミュレーション
※ボーナスは自動で年2回分で計算されます。
近隣の物件
伊倉町1丁目中古戸建(リフォーム中)
2,228万円
-
3LDK(84.73㎡)



